Bratislava - Staré Mesto Prenájom Komerčné 3-izbový
- zodpovedný maklér: Ing. Monika Nováková
- mobil: +421 0905 450 900
- e-mail: monika.novakova@ivmoreal.sk
Detaily nehnuteľnosti
- Typ transakcie Prenájom
- Typ nehnuteľnosti Komerčné
-
Cena
900,00 EUR/mesiac
+ zálohová platba za energie 150,- € - Lokalita Bratislava - Staré Mesto
- Ulica Sládkovičova
- publikované 20.01.2025
- Počet miestností 3-izbový
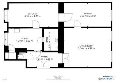
- Metráž 80.00 m2
- Počet poschodí 3
- Mezonet
- Podkrovie
Fotografie nehnuteľnosti
Popis nehnuteľnosti
Prenájom kancelárskych priestorov 80m2 (pôvodne 3 izb. byt) v absolútnom centre mesta na Sládkovičovej ul. v blízkosti Prezidentského paláca, TOP ADRESA. ==== Priestory sú situované na prízemí historickej budovy po komplexnej obnove fasády a vnútorných priestorov, priestory boli kompletne zrekonštruované... pozostávajú zo vstupnej chodby, troch miestností/izieb, kúpeľne so sprchovým kútom, samostatnej toalety a kuchyne. ==== Podlahová plocha priestorov vrátane príslušenstva je 80m2. Interiér je vzdušný a svetlý, atmosféru priestoru znásobujú vysoké stropy, dvojkrídlové kazetové interiérové dvere, vysoké okná s vnútornými pôvodnými okenicami a ozdobným kovaním. ==== Rekonštrukcia nehnuteľnosti bola prevedená s dôrazom na zachovanie dobových historizujúcich prvkov. ==== Bytový dom sa nachádza v lukratívnej rezidenčnej lokalite Palisády v blízkosti sídiel diplomatických zborov, zahraničných zastupiteľstiev a ambasád. Byt je vhodný k prenájmu pre menšiu firmu (advokátska kancelária, notariát, marketingová a reklamná agentúra, architektonické štúdio ap.), je vhodný aj ako reprezentačné firemné sídlo. ==== K prenájmu je priestor ihneď voľný, k inzerovanej cene prenájmu 900,- eur bude pripočítaná zálohová platba za plnenia spojené s užívaním bytu vo výške 150,- € mesačne ==== Volajte ešte dnes, obhliadku radi zabezpečíme, aj cez víkend. tel: 0905 450 900, 0905 100 105 e-mail: monika.novakova@ivmoreal.sk, ivmoreal@ivmoreal.sk ==== © Text, obrázky a fotografie sú autorským dielom a majetkom realitnej kancelárie IVMO-real, s.r.o.